En su aniversario N°120, Agronomía y Sistemas Naturales UC anuncia construcción de nuevo edificio
La noticia fue revelada por la decana María Angélica Fellenberg: la edificación contará con una sala de estudio, cuatro laboratorios y oficinas administrativas para los docentes. En el marco de los 120 años de la Facultad de Agronomía y Sistemas Naturales UC se dio a conocer el anuncio de la construcción de un nuevo edificio […]
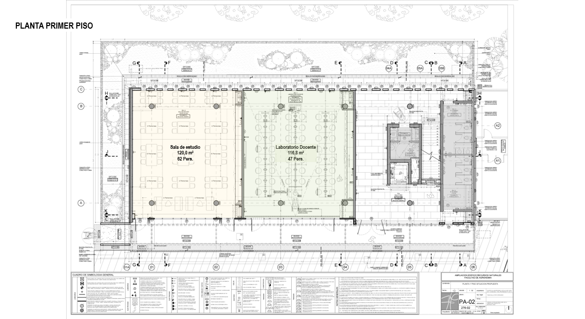
La noticia fue revelada por la decana María Angélica Fellenberg: la edificación contará con una sala de estudio, cuatro laboratorios y oficinas administrativas para los docentes.
En el marco de los 120 años de la Facultad de Agronomía y Sistemas Naturales UC se dio a conocer el anuncio de la construcción de un nuevo edificio para el plantel, el cual se enmarcará dentro de las políticas de sustentabilidad de las nuevas edificaciones de la UC.
La noticia la entregó la decana María Angélica Fellenberg, en la ceremonia de celebración de los 120° años de aniversario –y conmemoración de San Isidro, Patrono de la Facultad- instancia en la cual participaron distintas autoridades de la UC, encabezadas por el rector de la Universidad Católica, Ignacio Sánchez</a>; la vicerrectora Económica, Loreto Massanés; la vicerrectora de Comunicaciones y Extensión Cultural, Rosa María Lazo; la secretaria general, Cristina Fernández, y el Vice Gran Canciller UC, Padre Osvaldo Fernández de Castro, junto a la presencia de decanos y decanas de otras facultades, profesores, administrativos y alumnos.
Al inicio de la ceremonia, el rector Sánchez entregó palabras de felicitaciones y destacó el rol que ha cumplido la Facultad, desde su creación. “Felicito a esta comunidad de la Facultad de Agronomía y Sistemas Naturales por este largo y productivo camino que ha recorrido en estos 120 años, aportando en esta travesía”, expresó.
Respecto del anuncio del nuevo edificio, la decana Fellenberg detalló que “hemos crecido considerablemente y nuestra casa nos quedó pequeña. Por ello, tenemos proyectada la construcción de un nuevo edificio para la Facultad, con espacios adicionales para nuestros estudiantes, como salas de estudio y laboratorios, así como también oficinas para los profesores”.
La construcción del nuevo edificio se realizará bajo el Plan de Desarrollo de Estratégico de la Facultad, el cual además considera nuevas instalaciones para la reciente carrera de Ingeniería en Recursos Naturales, que se integró el 2023 a la Facultad.
La edificación de la obra iniciará durante el 2025 y -al tratarse de una nueva construcción en los campus UC- se seguirán los actuales lineamientos de políticas de construcción de la Universidad Católica, incluyendo 1 sala de estudio de 120 metros cuadrados con capacidad para 62 personas, la creación de 4 laboratorios (docente, investigación, alimentos e informática), además de considerar oficinas administrativas para los docentes.
Después de hacer un recorrido por lo que han sido estos 120 años, la decana comentó “queremos que nuestra Facultad continúe siendo un actor relevante en el desarrollo del sector. Por ello, nos llena de orgullo anunciar la construcción de este nuevo edificio, lo cual representa dar un gran paso de crecimiento y consolidación”.
Cada planta del nuevo edificio se calcula que será de 420 metros cuadrados y su construcción se emplazará en el sector sur poniente de la Facultad. Se prevé que su inauguración se realice a fines del 2026.
Créditos fotografía: César Cortés, fotógrafo de la Dirección de Comunicaciones UC.

Revive la ceremonia de conmemoración de los 120 años en el siguiente video: